是一種面向筆記本電腦的主體部件,屏幕外框等采用獨自的旋轉噴涂R技術,可實現安定品質且低成本量產的專用噴涂系統。
▲筆記本電腦噴涂系統 3組噴槍 事例
Mg金屬筆記本電腦部件,樹脂制屏幕框架等,通過旋轉噴涂R技術可以達到膜厚均勻且抑制涂料的無謂浪費,是進行高品質生產的專用噴涂系統。

部件的著手,凹陷,平面等,可根據不同的部位設定細致的噴涂條件。色彩不均,掛漆,霧化不良等常見問題都可通過高度的條件設定并配合旋轉噴涂實現完全解決。
對于能夠進行細微設定噴涂條件的SOFTBOY PRO來說,不管是變換素材還是涂料,只要通過調整噴涂條件就可以解決。
一般來說旋轉噴涂的難點是四周與中心部的膜厚均勻化。注入了旋轉噴涂R技術的SOFTBOY PRO通過獨自的PACK示教軟件可以進行簡單的調整。描繪圓錐似動作的機械手,噴涂條件,旋轉速度的絕妙搭配,能夠實現筆記本電腦中心與四周的涂膜完全均勻。

規劃圖紙時生產線上的噴涂機械手之前會采用除塵除電裝置集塵噴房設計。自動化的除塵除電防止了浮游垃圾的不良。除此之外,在任選項目中還可配置迷你手動集塵柜。是一種可以在無塵室內使用集塵設備,有助于上料前的初步除塵。

具備溫濕度控制的空調系統能夠讓噴涂室內的環境時常保持穩定。顧及到能夠影響涂膜的溫濕度控制,防止浮游垃圾的侵入,防止帶電等,實施對應涂膜的環境對策。

SOFTBOY PRO的最大特征是懸吊移動型機械手。而能把此特征發揮到極致的是可搭載復數噴槍。為了實現提升1臺機械手的量產效率,我們采用了獨自研發的可配掛復數噴槍的“動力傳感接頭”。 實現了即能夠提高1臺機械手的生產效率,又無需使用過多空間的絕佳效果。
搭載的噴槍數根據生產量定制。最大限度的發揮低成本下1臺機械手的高效量產。
泰酷寶獨家的涂料專用供給裝置注塞泵系統可以以1cc單位控制。抑制無謂的涂料消耗,控制涂料成本。

單純的構造設計。清洗/維護操作簡單,能夠有效抑制清洗用溶劑的消耗量。
當然換漆工序也更為簡單。能夠縮短準備工作以及變換機種時的作業時間。
因為注塞泵系統1個注塞缸對應1把噴槍,進行定量管控,所以噴槍間的涂料供給沒有差異。因此復數噴槍同時噴涂時也可以完成高品質的生產。

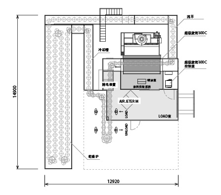
本筆記本電腦噴涂系統,使用S型機械手SOFTBOY PRO。采用傳送線自動跟蹤式噴涂方式的超級旋轉300C設計。是2噴工藝的筆記本電腦自動噴涂系統。

| 工件名稱 | 筆記本電腦 | |
|---|---|---|
| 循環時間 | 45秒 | |
| 處理單位 | 3治具 | |
| 流平時間 | RT 3分 | |
| 干燥時間 | 30分(75~80℃) | (通過時間) |
| 治具尺寸 | φ400 |
| 產量 | 1,920個 | /8小時 |
|---|

可移動式,小型除塵噴柜
內置高性能濾網,利用循環空氣除塵。無需排氣風管,可在無塵室內使用。